Av Cordoba 2500 |ALT2416
Principal
| Precio: | U$S 180.000 |
|---|---|
| Operacion: | Venta |
| Tipo: | Departamento |
| Barrio: | Barrio Norte |
| Antigüedad: | 50 años |
| Baños: | 2 |
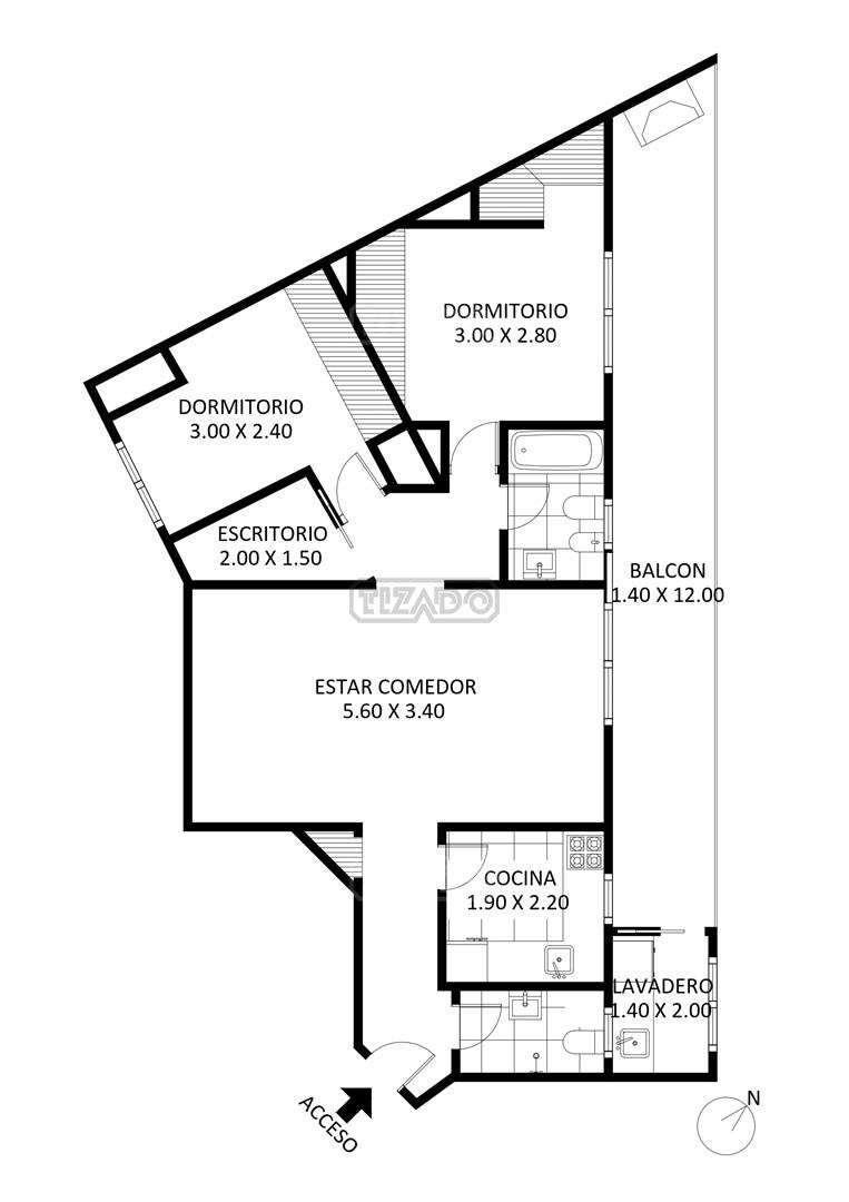
| Ambientes: | 3 |
| Dormitorios: | 2 |
| Estado: | Muy Bueno |
| Orientación: | Norte |
| Disposición: | Frente |
| Sup. Propia: | 97,60 m2 |
| Movilidad Reducida: | Sí |
DEPARTAMENTO DE DOS DORMITORIOS+ESCRITORO+BALCON CORRIDO CON PARRILLA DE 22 MTS!!! Excelente semipiso, cercano Av Pueyrredón, pocas cuadras Av Santa Fe, excelente conectividad, Muy buen edificio en óptimo estado de conservación. Piso alto, SILENCIOSO VISTA ABIERTA con balcón aterrazado con parrilla TODO LUZ Y SOL. Todas los ambientes al exterior permitiendo una buena ventilación de todo el departamento. Ventanales nuevos en aluminio con vidrios dobles DVH. Amplio hall de entrada. Estar comedor con salida al balcón corrido. Dos dormitorios con mucho espacio de guardado y escritorio. Toilette de recepción con ducha y baño completo con bañera, ambos con mesada de mármol de carrara. Reciclados baños y cocina. Amplio lavadero independiente. Muy buena planta. Servicios centrales, agua caliente y calefacción por radiadores. Superficie cubierta 74.76 mts superficie descubierta 22,84 mts. Expensas mes de oct 25 $245 mil.Todas las medidas son aproximadas y las definitivas surgirán de la escritura traslativa de dominio. El edificio cuenta con accesibilidad para personas con movilidad reducida (Ley 5115). Claudio García Matrícula N°3738 CUCICBA.
Caracteristica
- Balcón
Detalle
- Agua caliente: CENTRAL
- Aire Acondicionado: LIVING
- Ascensor: DOS
- Balcón: Corrido
- Baños: DOS
- Calefacción: CENTRAL POR RADIADORES
- Cantidad Pisos: 14
- Cocina: 2.20X1.90
- Deptos. por Piso: 2
- Dormitorio: 3X2,80
- Dormitorio: 3X2.40
- Entrada: Excelente
- Escritorio: 2x1.5
- Expensas: 245.420 OCT 25
- Lavadero: independiente
- Living: 5.60X3.60
- Palier: Semiprivado
- Parrilla: Si
- Placards: EXCELENTE ESPACIO GUARDADO
- Tipo Pisos: Parquet
- Toilette: con ducha
Mapa